在线咨询热线
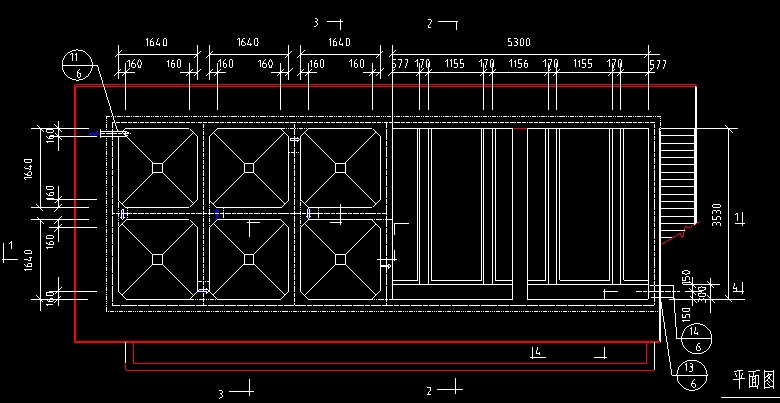
保定建筑设计院受该村的村委会的委托,对该村一处饮用水取水工程项目进项巩固提升,加强取水工程的结构安全性,延长使用寿命。设计团队在对现场进项走访勘察后,了解了整个净水反应池的工作流程后,针对甲方的需求,提供了对应的设计方案。应急照明平面图
1.设计说明
2.平面图
3.设计细节
4.反应池流程图
保定建筑设计公司,保定市政设计院,保定建筑设计院
各大房地产公司的气质是什么样 从招人就可以看出来
在建筑工程中应用新技术、新工艺、新材料、新设备是大势所趋,也为建筑业的发展指明的方向。现阶段,建筑工程施工技术呈现出高、精、尖三大趋势。大型工程的施工难度增加,尤其是高层建筑对施工技术资料的整理工作提出了更高的要求。
随着房地产行业的火热,这十来年国内的建筑设计行业也是风起云涌,出现了大大小小设计公司。那么这些公司都是靠什么赚得盆满瓢满的呢?这里面有什么秘密呢?存在什么问题呢?今天我和你一起探讨!
福州建筑设计院
福州市政设计院
福州建筑设计公司